吐鲁番八风谷精品民宿
BAFENG RETREA
绿洲驿站 八面清风
吐鲁番盆地是中国陆地的海拔最低点。盆地北侧天山山脉的冰雪融水,年复一年顺着地势往盆地中央流淌。水流在途中遇到火焰山的阻挡,亿万年间在火焰山山体中侵蚀出几条峡谷,给盆地带来了稳定充足的水源。这些水源从远古开始就滋养着这片植被繁茂的绿洲,带来了独特丰富的物产,创造出灿烂的历史和文化。这些峡谷中最宽阔的一条,就是著名的葡萄沟。

吐鲁番市葡萄沟 图片来自网络
太平广记·卷八十一·异人一·梁四公记载:“酒是八风谷冻成者,终年不坏。”记载的是当年高昌国的贡品冻酒,而八风谷就是葡萄沟的古名。八风谷精品民宿得名于此。民宿就坐落在葡萄沟核心区内青蛙巷的巷口。基地周边围绕着古桑林,葡萄地和传统维吾尔村落。这样一个独特,优美,文脉丰富的基地,既给设计带来了挑战,又为建筑师提供了极丰富的灵感源泉。



八风谷独特的建筑形式融合了中亚风格、葡萄沟民居特色以及现代建筑元素,隐喻吐鲁番自古以来作为文化宗教人种的大熔炉地位。建成后的八风谷,掩映在葡萄沟翠绿的浓荫之中,与自然环境和建筑环境都取得了很好的融合。





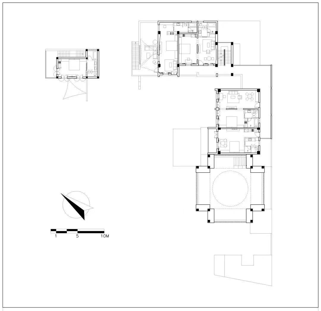
八风谷建筑总面积1300余平米。依托用地条件,民宿分为三个单体建筑:沿青蛙巷西南侧的咖啡厅,L型的民宿主体建筑,以及位于基地西北侧的独栋客房。

一层平面图
二层平面图

三层平面图
民宿的建筑层数为局部3层。其中底层为下沉1.8米的半地下室空间。这种布置方式来自于传统吐鲁番民居的地下窑洞做法,半埋式建筑能改善建筑的保温性能,降低夏季室内温度,节约能源消耗。



依托吐鲁番的气候特点,八风谷的公共区域主要采用半室外开敞建筑做法。开敞部分包括庭院、大堂、走道等空间。 虽然吐鲁番夏季气候非常炎热,但因为公共区域充分遮阳,通风良好,因此仍然维持极好的舒适度。


挑高2.5层的大堂采用四面中心对称的拱形建筑撑起顶部的圆形采光屋顶,其形式的灵感来自于拜占庭和伊斯兰建筑中常见的帆拱做法。混凝土空心砖在拱券内砌筑成多孔的墙面,既有装饰和遮阳作用,也很好地呼应了吐鲁番的晾房建筑特色。




大堂顶部的反穹顶设计,让自然光线均匀柔和地照亮大堂的环境。

大堂的马赛克镶嵌壁画来自于吐鲁番博物馆的著名馆藏,洋海墓地出土的“奔鹿纹木桶”上的奔鹿纹样。这出自两千多年前不知名工匠的艺术作品,手法娴熟,气韵流动,因吐鲁番极干燥的气候条件才得以留存,是吐鲁番灿烂历史文化中的珍贵片段。如今重现在八风谷的墙面上,和建筑环境互为映衬,相得益彰。


从大堂向下步入下沉庭院,这是民宿的另一处主要公共活动空间。





庭院内接早餐厅,面对白砂铺底的景观水池,头顶茂密的葡萄架,是一处舒适宜人的户外餐饮空间。景观水池中央的南疆风格雕花大柱,以其独特造型和民族风格的鲜艳色彩,成为下沉庭院醒目的视觉焦点。




早餐厅和庭院之间是可以完全打开的大玻璃移门,可以根据室外气温选择敞开和关闭。



主入口南侧的HEY Café是民宿中可以独立运营的区域。




咖啡厅尺度比较紧凑,布局简洁,设计和装饰风格非常都市化。咖啡厅的窗外有邀请艺术家陆毅创作的主题壁画“悟山图”,在头顶火焰山的孙悟空注视下,喝一杯吐鲁番独此一份的好咖啡, 是八风谷能带来的另一个有趣的体验。




说到体验,就不能不提作为民宿体验主体的客房。八风谷共提供19间各具特色的客房。



客房的室内设计延续建筑设计现代、质朴、混搭的风格,把建筑设计中符号化的混凝土空心砖元素引入到了室内,同时点缀以新疆手工艺品,地毯,民族乐器等。在房间朴素的背景上,八风谷选用了最高标准的洁具、布草、床垫、家具,确保满足最挑剔住客的舒适性要求。







所有客房均设置落地门或露台空间,可与室外空间亲密接触。同时,也普遍设置了百叶遮光窗,以抵挡吐鲁番夏季白天火热的阳光。





八风谷依托美丽的葡萄沟,又给葡萄沟带来了新的景观,注入了新的活力。更难能可贵的是,八风谷也给周边古老的维吾尔社区带来了就业岗位,经济发展的机会和新的社交空间。

八风谷的后门,原本只是一个布草和员工的出入口,却因为有小小的公共空间和花坛座椅,自然形成了一个社区的聚集点。早上有周围学校的学生在这里晨读,傍晚有维族大爷在这里闲坐聊天下棋,住店的客人在近在咫尺的露台上就可以和他们交谈,沟通,也为民宿的住客提供了深度融入民族社区的机会,得到独特的体验。

八风谷的设计是一个完整的呈现,从规划,建筑,室内,景观到标志标识和软装,全由同一个团队籍以一致的设计思路来创作。经过三年的设计,完善,修改,深化,建设,最终实现了一个完成度很高的作品。我们的团队相信,在吐鲁番的阳光下,葡萄沟的果香里,美丽的八风谷会成为中国西部最有吸引力的民宿目的地。
工程概况:
业主:吐鲁番康居企业发展有限公司
设计:上海新外建工程设计与顾问有限公司
项目负责人:夏莹
用地面积:1310平米(建设用地);3000平米(林地)
总建筑面积:1320平米
设计时间:2018-2019年
建成开业时间:2021年5月
建筑摄影:夏莹














